Plans Unveiled for Redesign of Eastern Market Metro Plaza
By Larry Janezich
Last night, at the second of two community meetings called for this purpose, Amy Weinstein of Esocoff & Associates unveiled two concepts for the redesign of all of the public lands on Pennsylvania Avenue between 7th and 9th Streets, SE. The parcels include the Eastern Market Metro Plaza, the large triangular park between 8th and 9th Streets on the north side of Pennsylvania Avenue, the two smaller triangular island parks at the intersections of the two D Streets and 8th Street, and the median strips.
Both concepts are comprised of numerous individual components which are being submitted to the community for input. Barracks Row Main Street’s David Perry, who hosted the meeting, characterized the plans as being in the early stages and far from definitive.
Next Monday, December 16th, the plans will be posted to the project website – www.easternmarketmetropark.com – and comments can be submitted through the website until Friday, January 10th. The meetings this week and comments on the website provide an opportunity for the community to provide feedback and that information will be used to refine the plan until a final concept can be created (perhaps by next spring) upon which Requests for Proposals (RFPs) can be based. Last summer Councilmember Tommy Wells said that how quickly the RFP stage can be reached depends on how quickly money becomes available. He also said that how much the community decides to do will determine how much outside money will be needed.
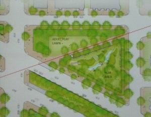
Both concepts for the Metro Plaza envision removing some trees currently growing on the plaza and replacing them with sycamore and/or elm trees. Both concepts call for a water feature, a re-located bus stop, chess tables, space for impromptu busking (street performance), an adult play lawn (reading, sunning, socializing), and a much reduced info hub – the long-desired brain child of the area’s retail interests. Elm trees would play a major role in the design, especially in framing the façade of the library. Long benches, designed to discourage sleeping, would line green areas and the water features in both concepts.

Aerial View of the “Bosque” Concept (click to enlarge)
The first concept for the Metro Plaza envisions a large “tree bosque” – or grove – with the sycamores arranged in a grid pattern. A broad “parade” – or sidewalk – runs from the Metro entrance to 8th Street, parallel to Pennsylvania Avenue. The façade of the Southeast Library would be a prominent feature of the new design which would open up the western end of the plaza and broaden the steps of the library allowing access to the library’s gardesn. A fountain and still water feature would be located near 8th Street.

Aerial view of the “Library Extension” Concept
The second concept for the plaza is considerably more ambitious and envisions actually incorporating the Southeast Library as a central component of the redesign by creating a below grade extension of the library on the western end of the plaza. The underground facility would be accessed by a small entry pavilion on the plaza itself and have skylights reminiscent of the U.S. Capitol’s Visitor Center or the National Gallery. Weinstein noted that space limitations made meaningful contiguous expansion of the Southeast Library impossible, and this proposal would increase the library’s current 8,000 square feet to the current community library standard of some 24,000 square feet. An intermittent water feature would be located closer to the Metro entrance.

Cross section of underground extension of Southeast Library

Architect’s rendering of the “Library Extension” concept
The Park on Pennsylvania Avenue’s North Side
Regarding the park on the north side of Pennsylvania Avenue between 8th and 9th Streets, SE, the design team looked for inspiration to the existing “guerilla playground,” the Navy Yard and the Anacostia Watershed Society “Play and Learn” sites, and considered ways to incorporate berm landscaping and areas for adult play – sunning, reading, and socializing.
Both concepts anticipate enclosing the children’s play area with an iron fence and both could accommodate water features which could be employed to support play devices which encourage cooperation among children and demonstrate simple mechanical principles. Two such items which were mentioned include a hollow “Archimedes’ Screw” to move water or sand, and a periscope. Both concepts include differing versions of a diagonal sidewalk from the 9th and South Carolina intersection to the 8th and Pennsylvania Avenue intersection.

Aerial view of concept for park north of PA Avenue featuring upgraded “guerilla playground”

Close up of upgraded “guerilla playground”
The first concept is based on the existing “guerilla playground” idea of moveable pieces which would be placed on a scaled-down Capitol Hill city streetscape, complete with an abstract model of the Capitol Building, behind which could be tiny community gardens. This model would provide the larger play area of the two proposals. A “landscaped panel” buffering the residential area could include berms and trees, but would not provide benches.

Aerial view of park on north side of PA Avenue featuring “adult play area” and smaller children’s playground
The second concept provides a smaller play area which anticipates berms and interactive educational play tools, and an adult play area.
Pennsylvania Avenue Median Strips and the “Island Parks”
For the medians, the plan is to beautify and encourage the use of intersections for pedestrian crossings. Landscape elements designed to remove silt and pollution from surface runoff water termed “bioswales” designed by Ohme vas Sweeden Landscape Architects would be the prominent feature, surrounded by iron fences or stone-capped brick retaining walls.
Similarly, there is only one design proposal for the two small triangular park portions of the redesign effort. These are the parcels near Dunkin Donuts and at the southeast corner of the Hine site. Both are technically on the sections of the divided D Street which lie on both the north and south sides of the Metro Plaza. Bioswale would center both parcels and both would be surrounded by outward-facing benches.
Traffic and Pedestrian Safety
The redesign proposal includes elements to address the flow of traffic and pedestrian safety. Among the ideas being put forward include moving the Metro bus stop from in front of Starbucks to the east end of the Metro Plaza. The circulator bus stop would remain in front of Starbucks. Curb extensions or “bump outs” at corners (particularly at the problematic intersections of the two D Streets with 8th Street) would help protect pedestrians. Also suggested to this end was reversing the flow of traffic on the two short sections of the D Streets, making them one way in the opposite direction from what now exists. Other elements of the traffic proposal include moving the car share spots near Hill’s Kitchen to where the taxi stand is currently located near Southeast Library, closing the D Street spur in front of Community Connections, and moving the fire station bus stop to Pennsylvania Avenue in front of Community Connections.