First Look at Concept for 3rd Development Near SE Safeway
by Larry Janezich
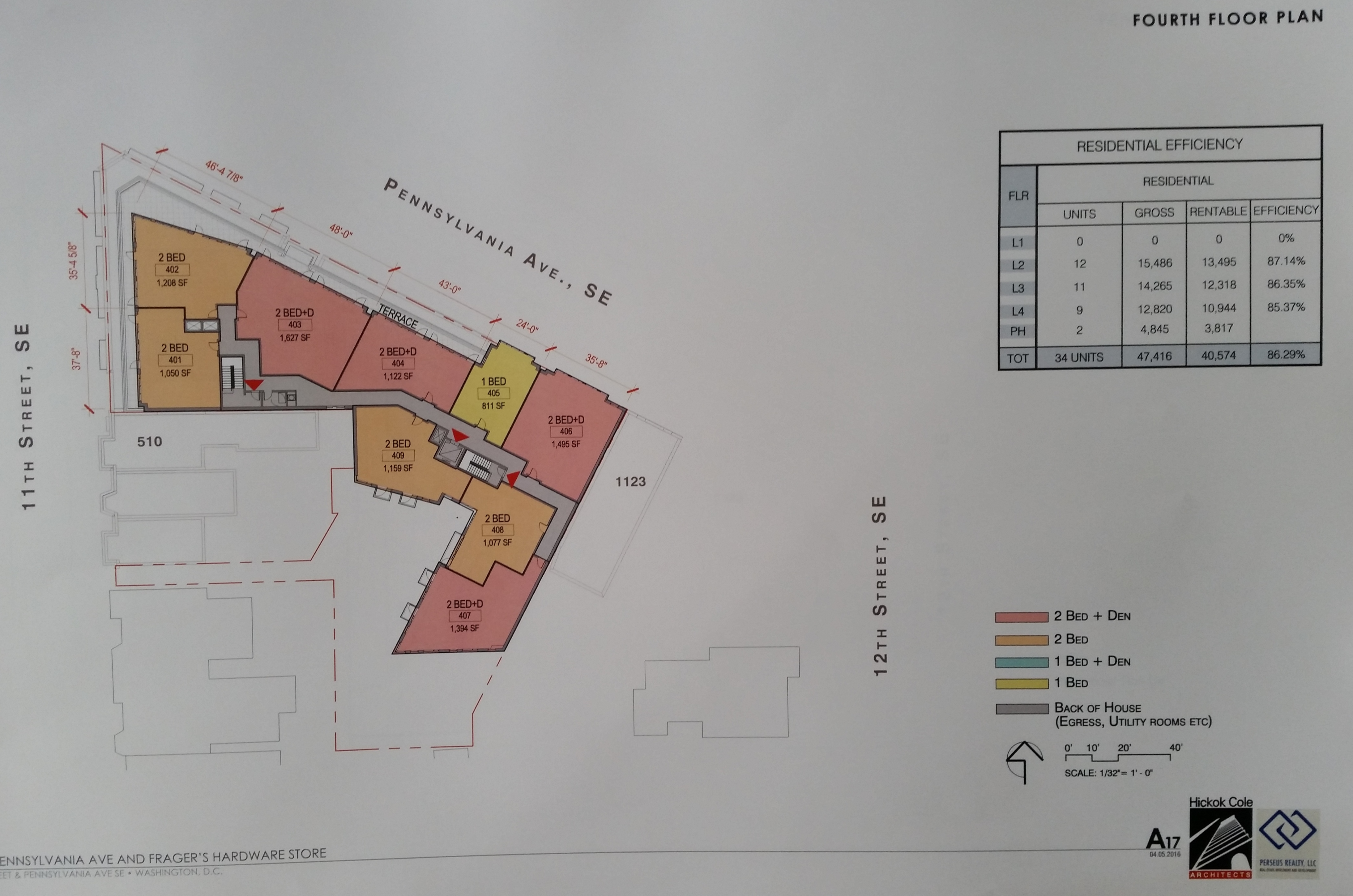
Insight Development met with ANC6B representatives Thursday night to give commissioners a first look at the initial design concepts for the 152 unit apartment complex planned for the 1300 block of E Street, SE, which the developer is – for now – calling the “Bowie Site.” Insight is also the developer of the Buchanan School site adjacent to the SE Safeway. OPaL LLC is developing the 3rd project – Watkins Alley – adjacent to the Bowie Site, across E Street, south of Safeway. The developer emphasized that the concepts are preliminary and do not reflect the level of detail which the project will feature upon completion.
The meeting on Thursday was with the ANC’s Subcommittee on Planned Unit Developments, (PUD) chaired by Commissioner Nick Burger. The PUD process is a means by which a developer can request a change in zoning to permit greater density and mass for a site than would be permitted by current regulations. To compensate the community for the impact of the larger development on the neighborhood the process provides for the developer to grant a package of “benefits and amenities” to the community. Those benefits and amenities are negotiated for the community by the ANC. Insight filed a PUD application with the Zoning Commission on April 8.
Some of the benefits and amenities being considered by the developer related to the Bowie Site include an upgrade in landscaping and lighting for the Potomac Metro stop; expanding the alley adjacent to the project and providng paving, lighting and snow removal; expanding resources for Capitol Hill’s senior population; and including two and three bedroom apartments among the 13 or 14 affordable units required under the city’s Inclusionary Zoning regulations. Those regulations require new residential projects on private land to dedicate 10% of the project’s square footage to affordable living space, at 80% to 50% of the Area Median Income.
Although Insight owns the land, a lease held by a business operating on the site runs until the end of 2018. Insight is attempting to relocate the company, and if successful, construction could start in early 2018. The project will take up to 2 years to complete.

































