
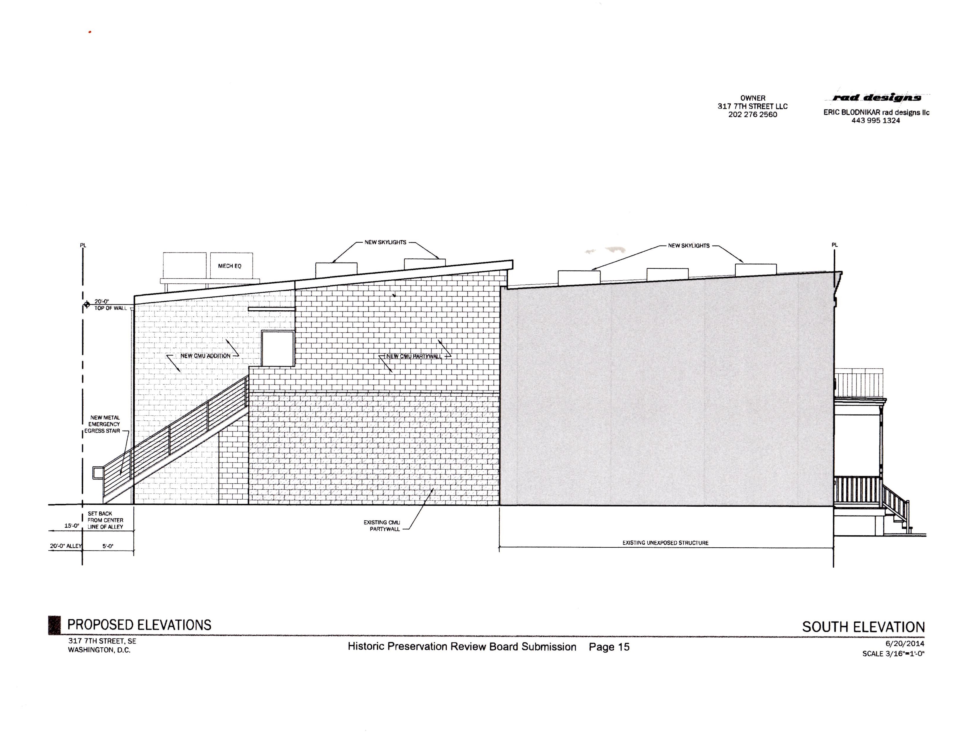
South Elevation Provisional Plan Showing Two Story Addition, Mechanicals, and Emergency Exit Stairway

Provisional Plans Showing Layout of First and Second Floors with Kitchen Indicated by the Dark Area on the Lower Image
Historic Townhouse/Frame Shop Near Eastern Market Likely To House New Restaurant
by Larry Janezich
Last night, at ANC6B’s Planning and Zoning Committee meeting, Capitol Hill developer Ken Golding presented plans to re-develop the Sheehy house at 317 7th Street, SE, across the street from the Hine Project. The plans propose turning the former frame shop and residence into a restaurant, though Golding expressed hope that a retail client could be found. Given the likely rent for a small property in that prime location, the odds would seem to favor a restaurant as a likely occupant and Golding admitted as much, saying “there are not as many retailers as there used to be.” Golding presented the planned changes in connection with a Historic Preservation Application which he hopes to take before the Historic Preservation Review Board at its next meeting.
The plans call for demolishing the single story structure at the rear of the building, adding a two story attachment with a new emergency exit stairway in back, and replacing windows and second story French doors on the 7th Street façade. Golding, a partner in Stanton Development which is developing the Hine project, was representing a new entity developing the Sheehy house – 317 7th Street LLC – comprised of himself and his two sons. Stanton Development owns numerous properties on the block, including several fronting Pennsylvania Avenue.
Commissioner Ivan Frishberg said he had no problem with the Historic Preservation request, but raised concerns regarding the lack of an enclosed trash facility, citing the burgeoning rat and rodent problem plaguing neighborhoods which have restaurants. Commissioner Dave Garrison urged Golding to anticipate problems and deal with them in advance, emphasizing that rats are a huge problem in the neighborhood. He noted, “Residents back up on the alley – they will be all over you like a blanket.”
The Historic Preservation application was a late-breaking item placed on the committee’s agenda after the ANC’s Executive Committee meeting on June 24. Commissioner Brian Flahaven said that this was the result of the Historic Preservation Review Board (HPRB) notifying the ANC of the Historic Preservation application after the Executive Committee had met, and that consideration on short notice was necessary to allow the application to be come before HPRB at its next meeting.
While the addition of a late breaking item to the agenda is not unusual, the fact that this project is in the middle of one of Capitol Hill’s most important retail corridors and that it could appear on the ANC’s agenda on short notice means that ANC review will take place with limited neighborhood input. Indeed, in contrast to homeowners for whom historic preservation applications require extensive documentation and consultation with neighbors, the ANC Commissioners posed no questions regarding neighborhood review to Golding. In response to a question regarding opportunities for community input last night, Frishberg suggested that local media could publicize the project before the ANC6B meeting next Tuesday. To that end, the developer initially agreed to forward digital plans to Capitol Hill Corner (the plans are a matter of public record once they are submitted to the ANC – as they were last night). Subsequently, the developer informed CHC that “we are doing some tweaks to the plans in line with comments (at the meeting) and will have something by middle of next week.” CHC took this to mean the plans would be shared after the ANC6B meeting next Tuesday and obtained a copy of the provisional plans submitted last night.
The committee voted 10 – 0 to take “no position,” referring the application to the full ANC without recommendation. Frishberg urged the developer to consider all options regarding a trash enclosure and to work with the Department of Health and the BZA toward that end.
The Sheehy house came on the market listed at $875,000 this spring. The listing agent was Kitty Kaupp of Coldwell Bankers and Stanton Development. Since 1967, it had been “The Frame Up” – the studio, shop, art gallery, and home of prolific artist Richard Sheehy. Sheehy died in February, 2014.




Wow, another restaurant on Cap. Hill. What a surprise. We are rapidly ceasing to be a neighborhood and becoming a theme park, a historic core surrounded by South Beach. City planners seem to think a restaurant or bar is a neighborhood. Ugh.
I personally can’t think of any retail I could use here. The other 7th Street restaurants are packed, especially on weekends, so why not add another? The theme park and South Beach comparisons are a little absurd, don’t you think? Generally speaking, the restaurants in our neighborhood are of high quality and have a lot of character. They’re not just places for the tourists to feed themselves.
Another restaurant may or may not be ok depending on how it accommodates residential concerns but it really angers me that the ANC seems to nitpick over residents requests to obtain remodel permits but they are silent when it comes to developers. One wonders who the ANC ‘s actually represent.
Janie, I am the ANC commissioner that represents 7th street and this case and I think your blanket assertion that a) I “nitpick” over residential requests and b) were silent on this or generically all develop requests it just plain wrong.
Just to give you a little background here, it was my suggestion that the developer here change their plans to include internal storage for trash. And at our committee meeting we declined to recommend support for the proposal until they came back to us at the full commission meeting with such an option presented. What Larry presents as being “silent” may have led you to misunderstand what we actually did and why.
Far from being “silent” we were saying that the developer needed to change their plans to accommodate a community need and then come back to the full Commission. And I fully expect that change to be made by the time it comes before the full ANC meeting next week.
That is what I call taking action and making things better. So if you have a concern about the way I handled this case, or some specific residential case, feel free to contact me and let me know.
The inability of retail to afford the rents is an unintended consequence of historic preservation. Historic preservation boards restrict new develop, so existing housing and commercial stock becomes only more expensive.
If the neighborhood wants something other than restaurants, then allow for additional development (such as Hine) to occur.
Thank you! This is a point I have been making for years. Historic Preservation restricts housing and drives up housing cost near transportation hubs. Want more affordable housing and commercial stock that can accommodate retail? Take on historic preservation!
Michael, I have plenty of beefs with the HP process and wont defend it as perfect. What process is. But in four years on the ANC I just can’t say I have seen HPRB “restrict new development” as you generically suggest. In fact, the one case you mention (Hine) was approved by HPRB (many times as it happens). Additionally, the fact that this development has been delayed for a year or more is because it is waiting on the courts to adjudicate a citizen law suit has nothing to do with “preservation boards”. The dozen neighbors who filed the law suit and are holding up the development would likely be the first to contend that HPRB should not have approved this one as they did.
Overall, I see HPRB approving lots and lots of new and existing developments. Larry posted pictures of some last week.
If you want to argue that Zoning Codes and the Zoning Commission should do away with the 50 foot hight limit in residential neighborhoods as a way to have more retail and fewer restaurants, i guess you could make that case. But I don’t think it is accurate to say that HPRB is blocking new development or that it blocked Hine.
Unaffordable rents are a problem throughout the city and not just in historic districts.
How the cities zone and how popular places are to live in are just as responsible for rising rental rates. I’m sorry but I just don’t fully buy that if there was no historic district for CH that prices would automatically be significantly lower.
The Historic District enshrines an artificial concept set in a mythical non existent time (“the period of significance”) sustained by a pile of abstruse regulations and policed by neighborhood busy bodies who are wanna be enforcement officers, but thankfully without badges. IMHO. The Capitol Hill Historic District has more to do with Disneyfication and fetishes about a certain “neo Victorian” look seen through the fog of nostalgia than it does about sustaining a neighborhood for non subscribers to Old House Journal. These people are set designers. A house can look like a trailer inside, as long as it hits the mark on the outside with the right “massing,” “fenestration,” and a bay window here or there. If I could pry off my “historic marker” I would, as i now view it not as a mark of distinction, but a target.