
The shaded dog leg on the right is the deadend alley the Conservative Partnership Institute proposes to privatize.

This image shows the three buildings which would become one building after consolidaton of four separate lots into one lot.

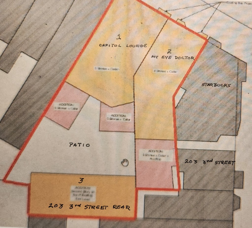
This architect’s rendering shows the three proposed additions (in pink): two additions to the former Capitol Lounge building and one addtion to the My Eye Doctor building. The latter backs up to 203 3rd Street, SE, an apartment house which is also owned by CPI. CPL also owns two town houses on 3rd Street adjacent to the apartment building, 205 and 207 3rd Street. Building number 3 is a garage which is part of the 203 3rd Street property which currently is not directly connected to the apartment building.

Here’s the architect’s rendering of what the patio would look like, framed by the three addtions. Note the upper right where the depiction appears to show an event space on the roof of the additon to the rear of 203 3rd Street.

Here’s the architect’s rendering ot the street scape on the south side of the 200 block of Pennsylvania Avenue, SE. The tall blue and red buildings at center and the tall white building at right are all owned by CPI. The Heritage Foundation owns the lower building between the red and white structures.
Conservative Group Seeks Closure of Capitol Hill Alley for Patriot Row HQ
by Larry Janezich
Posted May 7, 2023
The Conservative Partnership Institute (CPI) has retained one of the largest legal firms in the country to help privatize a public alley on Capitol Hill to facilitate combining several properties on the 200 block of PA Ave, SE, for its new headquarters.
Last Thursday night, Christopher Cohen, land use counsel for Holland and Knight, David Cheney of Core Architect + Design, CPI’s COO and CPI’s President and CEO appeared before ANC6B’s Planning and Zoning committee to support CPI’s application to privatize the dead-end alley behind the former Capitol Lounge at 229-231 Pennsylvania Avenue, SE. That property is one of nine recently purchased by CPI – at a reported cost of $41 million – on the block bounded by 2nd and 3rd Streets SE and PA Ave and C Street SE.
According to Cohen, the purpose of privatizing the alley is to enable the consolidation of three separate buildings into what will legally become a single building and will enable rear additions to two of the buildings. The privatized area would become an outdoor patio in connection with the single building and would remain open space. (Later, the architect for the project said in response to a question from a committee member that the additions could be done as a matter of right regardless of the privatization.)
CORE Architect David Cheny elaborated that the patio would be an extension of the Capitol Lounge to provide additional seating and kitchen space as well as a connection to the carriage house at the rear of the property. Renovating the former Capitol Lounge would make the restaurant compliant with DC code and thereby more attractive to a potential operator who would reopen it.
ANC Commissioner Kasie Durkit asked Cohen about the legal standard for closing the alley. Cohen said the standard is that the alley is not necessary for alley purposes. He explained that after the Office of DC Survey receives an application for closure, DC agencies and utilities – including the ANC – weigh in. After any objections are resolved the matter proceeds to DC Council for a public hearing, then the Mayor would sign legislation privatizing the alley if approved by DC Council.
Durkit also asked Cohen how he would respond to the argument that this is private conversion of public space, i.e., closing an alley to convert it to private use.
Cohen said he wasn’t sure he understood the question.
Durkin said that some might object that what was once public space is now private space and would push back on an encroachment onto a public area.
Cohen’s response was to refer to the process: there’s an application to close the alley – it’s reviewed – it goes to the city council – and the mayor signs it…it doesn’t happen overnight. He said the space was dedicated as public space over 100 years ago – it was once private property – and that sometimes alley closings are “reset” especially when an alley is not necessary for vehicular access.
This elicited a question from a nearby resident who calculated that some 1,000 square feet of alley space valued at $400 a square foot would translate to $400,000 and wondered who pays for this. Cohen responded that there is no payment involved other than going through the process – that (the transfer) is not transactional.
Resident committee member Corey Holman, former ANC6B Chair and former chair of 6B’s Planning and Zoning Committee, followed up on Cohen’s response to Durkit’s question about taking public land for private use. Holman said, “I don’t think pointing to the regulations is helpful. You are taking what is a public alley and using if for private and literally walling it off. I need a better response to that. Casting the argument in terms of the application reclaiming land that was originally private doesn’t hold. I just need a better response to the claim you’re taking public land for private good. Second, (in response to an assertion by Cohen that the alley closings do not involve the Comp Plan) … it’s completely at odds with a plain reading of the Comprehensive Plan that says ‘protect Capitol Hill’s historic alleys’. Closing a public alley for private use is completely at odds with the Comp Plan. It’s curious that the Comp Plan is not meaningful in this context… every word is meaningful… (saying that) the regulations don’t matter is not helpful and doesn’t assuage me. The applicants need a better response to these two questions.”
Commissioner David Sobelsohn provided a response to Holman, citing his own work in pioneering community benefit agreements as a commissioner in ANC6D. Sobelsohn said that in instances where public land was transferred for private profit, ANC6D told developers “we need you to make specific benefits to the community – whatever we can negotiate.” He said, that is why the new Rubell Museum in SW provides free admission for DC residents … “That’s how we resolved it in 6D. I suggest we start doing the same thing in 6B.”
Holman said he totally agrees with Sobelsohn and encouraged the ANC “to follow Sobelsohn’s lead on this process, if it should move forward….”
There followed a discussion about how to proceed and at what point the Committee should make a recommendation to the full ANC whether to support the application for closure. Cohen expressed his willingness to return before the Committee at its June meeting when the applicants would have a better idea of any issues the project faces as the result of feedback from city agency comments to the Office of the DC Surveyor and a better idea of when they might expect to proceed to a hearing before the city council.
Planning and Zoning Committee Chair Frank D’Andrea brought the discussion to a close, saying “It’s pretty clear…there’s going to be some sort of ask for some sort of public benefit. I encourage applicants to come back next month when hopefully there will be more input from other agencies and we can comment on that then.”
Commissioner Jerry Sroufe, in whose single member district the project lies, offered a motion to inform the full ANC that the committee is continuing the conversation with the applicant at the next meeting of the Planning and Zoning Committee. The motion was agreed to unanimously.
The Conservative Partnership Institute is chaired by former Senator Jim Demint who founded the organization after he was bumped from the leadership role at the Heritage Foundation. Former WH Chief of Staff Mark Meadows is listed as the organization’s Senior Partner – ahead of President and CEO Ed Corrigan and COO Wesley Denton.
“This elicited a question from a nearby resident who calculated that some 1,000 square feet of alley space valued at $400 a square foot would translate to $400,000 and wondered who pays for this. Cohen responded that there is no payment involved other than going through the process – that (the transfer) is not transactional.”
Cohen appears to be ignoring the fact that the proposal inherently is asking to, for $0, add 1000 square feet of space to private real estate already owned–inherently increasing the value of that private real estate by at least a few hundred thousand dollars, if not more.
So while this alley closure is not “transactional” in the sense that the public isn’t paying for, nor selling, the alley, the closure of it and move to put it into private hands entails a HUGE financial gain by a private entity with NO demonstrated public purpose (i.e., what does the alley closure do for the public–nothing).
What V. J. says here makes sense to me. What could we do to stop this action?
Of course this is “transactional”. They want the city to transfer ownership to them of public space. At the very least, a value has to be established for the property IF IT IS TO BE TRANSFERRED AT ALL.
But the larger question is should it be transferred at all. It is public space so we all have a say in its future.
If it is decided to transfer, then it must be paid for and the appropriate tax base established for the property by the DC government. In addition, it has to be established which property would have ownership of the space, or would it be somehow divided up amongst the properties. This could have long-term implications. This must be established for taxing purposes. (It doesn’t matter if the owners are non-profits–it still has to be established)
Also, apparently all the new buildings will be built on either what is now public space (it is hard to tell from the drawings) or will fill the existing lots beyond current rules. That issue will also have to be resolved. The city is very strict about the percent of property that can be impermeable (or built on). Hopefully, they will be just as difficult with this group as they would be with any owner.
When and where can I protest?
Well done, Larry, for breaking this story…..should, hopefully will be picked-up by the WP and local TV.
No one should be allowed to destroy this crucial element of the block structure. Alleys make blocks function, providing rear access, for parking, service (allowing us to not walk through garbage twice a week), give breathing room between the private sides of dwellings. Blocks without alleys are functional cripples and this would be a permanent loss – equal to (if less universally understood) the loss of a beloved building. Mutating a Nancy Reagan quote “just say hell no”.
If they are going to benefit from any future sale of the property(s) (and don’t think that wouldn’t be part of a listing and considered in the sale price) they should have to do more than file to close the alley. Anything else is ridiculous, unserious, and entitled.
Thanks Mr Janezich, this is definitely an issue to follow closely as it develops.
No deal. Historic property. Designed that way for a reason. They can set up a picnic table and umbrella. Not their property to OWN.