First Look at New Design for Rumsey Aquatic Court
by Larry Janezich
Posted January 2, 2026
The first roll out of the city’s proposed design for the new Rumsey Aquatic Center in March of 2025 produced a strong negative community reaction and especially from CM Charles Allen who had specifically found funding for a second floor which was not included in the plans.
Allen launched a petition drive, ANC6B, the Eastern Market Community Advisory Committee and Barracks Row MainStreet sent letters of support for plan modifications on behalf of the community. Allen announced that in response to the pushback the Department of Parks and Recreation would be coming back to the community with a revised design.
Just before the end of the year, the concept plans for the new design became available. DC law requires the Mayor to submit plans to the Historic Preservation Review Board (HPRB) for consideration before construction can begin on property within a historic district.
The proposed new building will be a destination facility for DPR, serving as a place for competitive swim events, community gatherings, and senior center activities including physical fitness amenities and a maker space. The project will provide approximately 29,000 square feet (up from 20,584) across two levels and will include the program elements outlined below.
Here are the concept renderings being submitted to HPRB – preliminary 3D visualizations showing the basic form, massing, and spatial ideas of the early-stage design.

Birds eye view of existing building.

Birds eye view of new building.

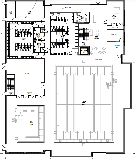
First Floor Plan.
Proposed Programming Summary for First Floor:
- Full size 8-lane lap swimming pool.
- A smaller therapy pool.
- Locker rooms, a family changing room, and bathrooms adjacent to the pools and splash pad.
- Staff office.
- Tech lounge.
- First aid room.
- Life Guard room.
- Lobby.
- Storage.

Second Floor Plan.
Proposed Programming Summary for Second Floor.
- Large Multipurpose/Recreation Room.
- Senior center with tech lounge, and other amenities.
- Small Fitness Room.
- Meeting rooms.
- Conference room.
- Incubator / Maker Space.
- Pool-overlook space.
- Terrace overlooking North Carolina Avenue.
- Toilets.
- Storage.

View of Main Entrance from northeast Corner of the building.

View of the south side of the building from C Street.

View of the southeast corner and the Eastern Market Alley from C Street.
Here’s a link to the December 19, 2025 DPR Rumsey Aquatic Center – HPO Filing Package: https://app.box.com/s/dhn9muwq7e6fqor5v5v40hn1w7yanfma/file/2084894430314
Next: Expect DPR is likely to announce a community meeting to present the new plan to stakeholders. The project team will continue to provide regular updates to a broad range of community stakeholders associated with the project, including Councilmember Charles Allen and his staff, ANC6B, Eastern Market Community Advisory Committee, the Capitol Hill Restoration Society, and the DC Preservation League. This will include on-going revisions to the plan up to and including final photo realistic renderings.
Much better, thanks.
The previous design was an architect show-off — look at this cool building! The swimmers went to the community meeting when they introduced it, and rightfully pointed out that they wanted lanes and utility, not wow.
This pool is too small to hold a large swim meet. But it could work for a dual meet or a mini meet (8 and under), during a quiet weekend. If this occurs, neighbors will need to tolerate significant parking pressure.